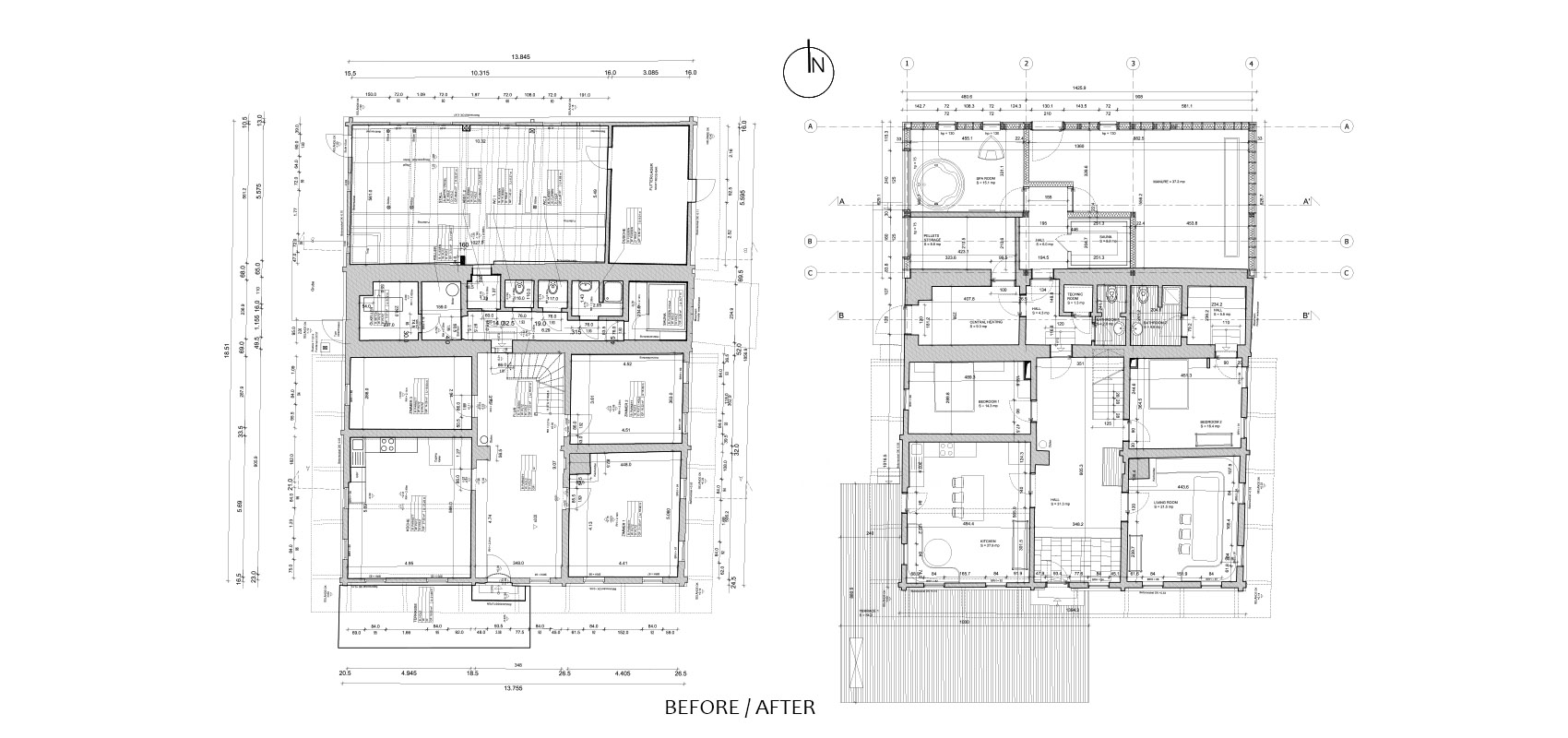
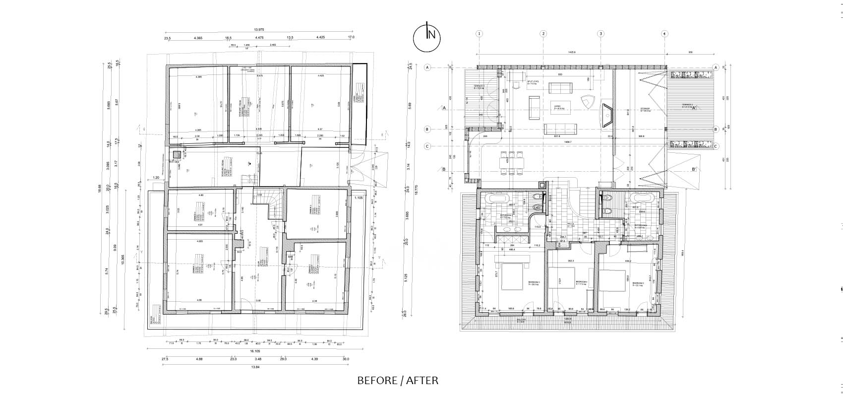
Veche de aproape 400 de ani, casa-ferma tipica acestei zone de munte a fost transformata intr-un chalet integrat contextului arhitectural al zonei. Proiectul a vizat reconversia fermei in spatiu de locuit, o consolidare integrala, refacerea sau inlocuirea pieselor deteriorate si reintegrarea lemnului vechi in structura de rezistenta si in spatiul interior al casei ca element decorativ. Astfel, grajdul vechi al casei a fost transformat in SPA, iar fanarul aflat deasupra, a fost transformat in living. Afișează mai mult






















